Palazzina in vendita

Palermo, Via Ciaculli - Ciaculli
€ 89.000
4 locali 4 locali
101 Mq 101 Mq
2 bagni 2 bagni

Palazzina in vendita

Palermo, Via Ciaculli - Ciaculli

Descrizione annuncio

Via Ciaculli, a pochi minuti dal Centro Commerciale Forum, disponiamo di una palazzina indipendente dotata di spazio esterno. E' la casa ideale per chi cerca una soluzione abitativa che consenta di godere di spazi privati senza alcun vincolo condominiale e di spese comuni.
L'immobile è così composto:
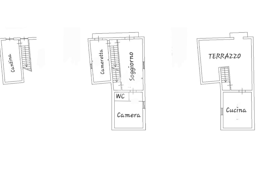
Al piano terra troviamo un vano versatile, perfetto da adibire ad uso cantina, deposito o zona hobby; Salendo al primo piano, si viene accolti da un ampio soggiorno luminoso, il cuore della casa, perfetto per momenti di relax o convivialità. Sullo stesso livello troviamo una camera da letto con finestra, una comoda cameretta e un bagno con doccia.
Al secondo piano troviamo un secondo bagno e una cucina abitabile, la quale dà accesso a una meravigliosa terrazza con vista panoramica, il luogo perfetto per godersi colazioni all'aperto, cene al tramonto o semplicemente momenti di relax immersi nella pace.

Questa proprietà, con il suo carattere indipendente e gli spazi ben distribuiti, è una soluzione unica che unisce praticità e charme. Verte già in buono stato di manutenzione, infatti l'impianto elettrico è stato rifatto a norma, gli infissi sono in PVC vetrocamera e l'impianto idrico interamente rimodernato.

Vuoi ricevere maggiori informazioni e fissare un appuntamento?
Contattaci allo 0918248099 oppure tramite WhatsApp al numero 3791835201.

Punti di riferimento nelle vicinanze: Palermo - Zona Oreto Nuova, Brancaccio, Giafar, Ciaculli, Castello Maredolce, Svincolo autostradale Viale Regione, Centro commerciale Forum

Mostra tutto

Nelle vicinanze

Trasporto pubblico Trasporto pubblico
Trasporto pubblico
1,1 Km
stazione di Palermo Brancaccio
stazione di Palermo Brancaccio
1,6 Km
Roccella
Roccella
1,3 Km
Laudicina
Laudicina
1,7 Km
Trasporto pubblico
800 m
Ricariche auto elettriche Ricariche auto elettriche
T.F. Car Service Palermo | EnelX
1,8 Km
Scuole Scuole
Scuola Elementare E Materna Nino Bixio
170 m
Scuola Media Inferiore Franchetti
2,7 Km
Scuola Elementare E.Salgari
2,7 Km
Scuola Media Statale G A Cesareo
2,8 Km
I.T.I.S. Alessandro Volta
3,0 Km
Farmacia Farmacia
Calì
2,3 Km
Farmacia
3,0 Km
Supermercati Supermercati
Ipercoop
1,5 Km
Simply Market
1,6 Km
Eurospin brancaccio
1,6 Km
Supermercati
2,0 Km
Conad
2,0 Km
Negozi Negozi
h&m
1,5 Km
China j j
2,2 Km
China Town
2,8 Km
Bar Bar
Bar
2,4 Km
Ristoranti Ristoranti
Minichello Frutti di Mare
2,3 Km
Il Campanile d'oro
2,3 Km
Mostra tutto

Caratteristiche

Rif.:
60995090
Piano:
1 di 2 (Piano su più livelli)
Balconi:
1
Terrazzi:
1
Camere da letto:
2
Arredamento:
Assente
Mostra tutto
Prezzo Prezzo
€ 89.000
Rata mutuo Rata mutuo
€ 415 / mese
Spese annue Spese annue
€ 0
Proponi il tuo prezzoProponi il tuo prezzo
Immobile valutato con T·Valuta

Classe Energetica

G
G
G
G
G
G
G
G
G
Anno di costruzione:
1930
Riscaldamento:
Assente

Ti interessa visionare l'immobile?

Fissa un appuntamento  Fissa un appuntamento

Richiedi informazioni

* Questi campi sono obbligatori

Calcola il tuo mutuo

Semplice e senza impegno
Anticipo

( % )
Mutuo

( % )

pochi semplici passi

inserisci i tuoi dati
Questionario completato
Grazie per aver richiesto un appuntamento senza impegno con un nostro Consulente del Credito e Assicurativo.

Hai inserito correttamente tutti i dati necessari e a breve riceverai una e-mail con un link da convalidare per inviare i tuoi dati.
Affiliato
Studio Oreto Giafar Sas
Via Oreto, 421 90124 Palermo (PA)

Il nostro staff


  • Desirhe Di Maira
    Coordinatrice

  • Irene Maccarrone
    Collaboratrice

  • Maria Straneo
    Responsabile
Via Oreto, 421 90124 Palermo (PA)
Zona: Oreto Nuova - Brancaccio - Giafar - Ciaculli - Croce Verde
Mostra su mappa
Orari: Orari: Lun - Ven 9.00 - 13.00 / 15.30 - 19.30 Sab: 9.00 - 13.00
Affiliato
Studio Oreto Giafar Sas
Via Oreto, 421 90124 Palermo (PA)

2025 Tecnocasa Franchising S.p.A. - P. IVA 08365160152 - Via Monte Bianco 60/A 20089 Rozzano (MI). Ogni agenzia ha un proprio titolare ed è autonoma. Privacy policy | Policy utilizzo | Cookie policy