Bifamiliare in vendita

Palermo, Zona Croceverde - Croce Verde
€ 270.000
Prezzo aggiornato
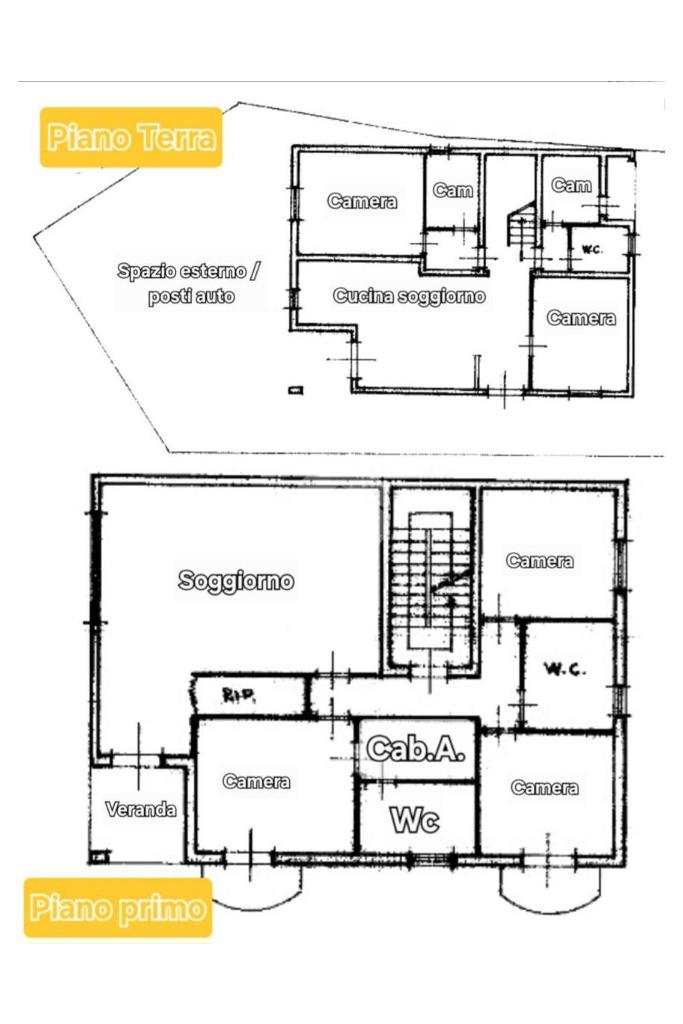
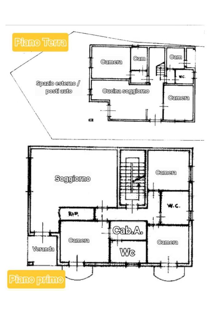
8 locali 8 locali
322 Mq 322 Mq
3 bagni 3 bagni

Bifamiliare in vendita

Palermo, Zona Croceverde - Croce Verde

Descrizione annuncio

Nel cuore della località di Croce Verde, a Palermo, proponiamo una villa bifamiliare perfetta per chi cerca spazio e tranquillità.

Con una superficie di 322 mq, questa proprietà offre ampi spazi abitativi distribuiti su due piani. Gli interni sono luminosi e ben distribuiti, offrendo un ambiente accogliente e funzionale. La villa è circondata da uno spazio esterno ideale posteggiare i propri mezzi, per momenti di momenti di relax o per ospitare amici e familiari. La villa è infatti delimitata da un cancello automatico che consente l'accesso con i proprio mezzi, così da avere un parcheggio interno privato.

Situata in una zona tranquilla, ma ben collegata al centro di Palermo, questa proprietà rappresenta un'opportunità interessante per chi desidera vivere in un contesto riservato senza rinunciare alle comodità della città.

Per ulteriori informarzioni contattaci allo 0918248099 oppure su whatsapp al numero 3791835201.

Mostra tutto

Nelle vicinanze

Trasporto pubblico Trasporto pubblico
Trasporto pubblico
2,1 Km
Roccella
Roccella
2,3 Km
Laudicina
Laudicina
2,7 Km
Trasporto pubblico
1,8 Km
stazione di Roccella
stazione di Roccella
2,2 Km
Scuole Scuole
Scuola Elementare E Materna Nino Bixio
1,8 Km
1° Circolo Didattico Villabate - Plesso "Don Milani"
2,1 Km
Scuola Media Statale Pietro Palumbo
3,0 Km
Farmacia Farmacia
Caporale
2,1 Km
Farmacia Ganguzza
2,3 Km
Farmacia Europa
2,4 Km
Farmacia D'Anna
2,7 Km
Supermercati Supermercati
Conad
1,8 Km
Decò
2,0 Km
Ard
2,0 Km
Ipercoop
2,2 Km
Supermercati
2,3 Km
Negozi Negozi
China j j
1,7 Km
China Town
1,9 Km
Rosé Mode
2,0 Km
Quick
2,0 Km
Splendore Srl (Caterina)
2,1 Km
Bar Bar
Bar
2,0 Km
Camilleri
2,1 Km
Crazy Bar
2,4 Km
Capitano
2,5 Km
Ristoranti Ristoranti
A Ferrovia
2,3 Km
Ferro di Cavallo 2
2,4 Km
Mordi e Fuggi
2,5 Km
Mostra tutto

Caratteristiche

Rif.:
61024051
Piano:
1 di 1 (Piano su più livelli)
Posti auto:
1
Balconi:
2
Terrazzi:
1
Camere da letto:
1
Mostra tutto
Prezzo Prezzo
€ 270.000
Rata mutuo Rata mutuo
€ 1.258 / mese
Spese annue Spese annue
€ 0
Proponi il tuo prezzoProponi il tuo prezzo
Immobile valutato con T·Valuta

Classe Energetica

F
F
F
F
F
F
F
F
F
EP globale non rinnovabile:
123.30 kW h/m² anno
Anno di costruzione:
1980
Riscaldamento:
Assente

Prezzo ridotto di €1 (4%%)

Ti interessa visionare l'immobile?

Fissa un appuntamento  Fissa un appuntamento

Richiedi informazioni

* Questi campi sono obbligatori

Calcola il tuo mutuo

Semplice e senza impegno
Anticipo

( % )
Mutuo

( % )

pochi semplici passi

inserisci i tuoi dati
Questionario completato
Grazie per aver richiesto un appuntamento senza impegno con un nostro Consulente del Credito e Assicurativo.

Hai inserito correttamente tutti i dati necessari e a breve riceverai una e-mail con un link da convalidare per inviare i tuoi dati.
Affiliato
Studio Oreto Giafar Sas
Via Oreto, 421 90124 Palermo (PA)

Il nostro staff


  • Desirhe Di Maira
    Coordinatrice

  • Irene Maccarrone
    Collaboratrice

  • Maria Straneo
    Responsabile
Via Oreto, 421 90124 Palermo (PA)
Zona: Oreto Nuova - Brancaccio - Giafar - Ciaculli - Croce Verde
Mostra su mappa
Orari: Orari: Lun - Ven 9.00 - 13.00 / 15.30 - 19.30 Sab: 9.00 - 13.00
Affiliato
Studio Oreto Giafar Sas
Via Oreto, 421 90124 Palermo (PA)

2025 Tecnocasa Franchising S.p.A. - P. IVA 08365160152 - Via Monte Bianco 60/A 20089 Rozzano (MI). Ogni agenzia ha un proprio titolare ed è autonoma. Privacy policy | Policy utilizzo | Cookie policy